














A beruházó a társasházat saját üzemeltetésű bérháznak építette, ezzel garantálva az épület hosszú távú frissen tartását. A 61 lakásos társasházból mindössze 28 lakást kíván értékesíteni.
A lakások kulcsrakészen, teljeskörűen bútorozva, gépesítve azonnal költözhető állapotban kerülnek átadásra, mely a vételár részét képezik. A hirdetésben szereplő fényképek az épületben található, már elkészült lakások állapotát mutatják – a lakások átadására 2025 augusztusában kerül sor.
LOKÁCIÓ
A társasház Buda legdinamikusabban fejlődő részén, a Kopaszi-gát közvetlen szomszédságában helyezkedik el. Számos egyetem, valamint több százezer négyzetméternyi irodaterület garantálja a lakások kiemelkedő kiadhatóságát és hosszú távú értékállóságát.
Az épület a Prielle Kornélia utca és a Szerémi út találkozásánál helyezkedik el. A társasháztól a főváros központja és a Kelenföldi vasútállomás autóval és tömegközlekedéssel egyaránt 15 perc alatt elérhető.
-1-es és a 47-es villamos megállói az épület közvetlen közelében helyezkednek el
-Kerékpárút közvetlenül az épület előtt halad el.
A környék teljeskörű infrastruktúrával rendelkezik. Megannyi étterem, élelmiszerüzlet, és további szolgáltatások is elérhetőek a lakók számára.
A TÁRSASHÁZRÓL
Az ingatlan területének jelentős részét parkosított zöldfelület borítja. Az épületen kívül 24 darab felszíni parkolóhely került kialakításra, melyek közül 4 darab elektromos autó töltővel felszerelt.
A társasház biztonságát kártyás beléptetőrendszer és kiépített kamerarendszer biztosítja. Az épület földszinti közös használatú területei közé tartozik:
-Elegáns érkezést biztosító lobby
-Magasan felszerelt edzőterem (GYM)
-Co-working terület (közösségi használatú irodarész)
-Tárgyalóterem
-Kerékpártároló
Modern, nagysebességű 13 személy befogadására alkalmas lift biztosítja a társasház lakóinak kényelmét.
Az 5. emeletről megközelíthető egy több, mint 200 négyzetméteres csodálatos panorámával rendelkező pergola tetővel ellátott tetőterasz.
LAKÁS
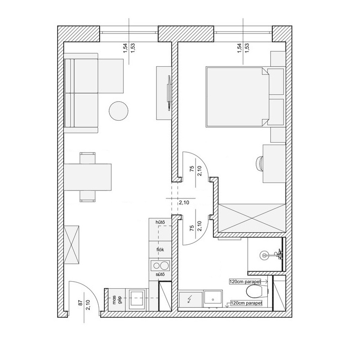
A lakás 39 négyzetméter alapterületű, amerikai konyhás nappalival plusz hálószobával, valamint egy zuhanyzós fürdőszobával rendelkezik.
A lakás ideális hőmérsékletéről szobánként szabályozható, termosztátos rendszerrel ellátott, Daikin hőszivattyú által működtetett mennyezeti hűtés-fűtés gondoskodik. A magas komfortérzetet és a folyamatos levegőcserét egy előkezelt frisslevegő rendszer biztosítja. A kiváló hő- és hangszigetelésről alumíniumtokos, háromrétegű Schüco külső nyílászárók gondoskodnak, amelyek hozzájárulnak a lakás energiatakarékos működéséhez is.
A lakásba való belépés egy 4 ponton záródó magas minőségű biztonsági ajtón keresztül történik.
A konyhabútor egyedileg készített minőségi konyhagépekkel felszerelt, mely tartalmaz:
-Electrolux sütő-mikró kombi
-Electrolux főzőlap és páraelszívó
-Electrolux hatszemélyes mosogatógép
-Beépített fagyasztós hűtőszekrény
A lakásban található beépített bútorok egyedileg, asztalos által kerültek legyártásra.
A fürdőszobában található egy méretre készített tágas üvegajtós zuhanykabin és egy Beko mosó-szárítógép is.
A képeken szereplő mozgatható bútorok, lámpatestek is a vételár részét képezik ezzel biztosítva a gyors és azonnali kiadhatóságot.
Hirdetésünk nem minősül ajánlattételnek, a változtatás jogát fenntartjuk!
Mozaik Apartmanház
Budapest XI. kerület, Prielle Kornélia utca 35.
Telefon:
+36202553723
E-mail:
info@mozaik-apartmanhaz.hu
